Indian Hills cut the ribbon on an exciting new facility recently. The Regional Entrepreneurship Center, previously known as the “Business Incubator” will be a place that new businesses can be nurtured before venturing out on their own.
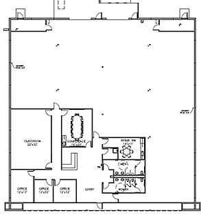
The Regional Entrepreneurship Center is a 10,000 square feet, multi-purpose, business incubator. A wide variety of business types can benefit from the services and programming offered by the REC. Of the 10,000 sq.ft, approximately 7,000 sq.ft. is rentable space. The other 3,000 sq.ft. is used for a “common space” that includes a reception area, bathrooms, kitchen/break room, training room, and a conference room. There are three offices. However, more can be built, based on the needs of a specific client. The REC also includes ramped and recessed loading bays for companies that require equipment and product loading and shipping.
A variety of services are available through the REC for all start-up businesses in the IHCC region. Further, clients of the REC will have constant, direct access to the REC management team for business consultation and training. The REC provides assistance and services in a number of areas,
including:
- Business Basics
- Networking Activities
- Marketing
- Financial Management
- Legal Assistance
- Identifying Potential Capital/Finance Sources
- Connections to College/Corporate Partners
- Business Training Programs
- Mentoring/Coaching
- Product Research and Development (R&D)
In addition to the above services, entrepreneurial training courses will be offered in the REC training room that are tailored to the specific needs of REC clients.
It has been extremely gratifying to see the REC come to fruition, as it was one of the first large grants that the Legacy Foundation awarded. Congratulations to Indian Hills on this wonderful addition to their North Campus.
